Get new listings emailed daily! SIGN UP LOGIN
Refine Search

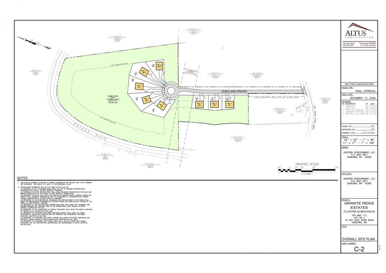
15 Hot Hole Pond Road, Concord, NH 03301

$819,999
  • Main Photo

17 Total Photos [Click to View All]

Active
LOT SIZE 14.200 acres MLS#5079814
STATUSActive PROPERTY TYPELand - Lot/Land

Listing Courtesy of: OwnerEntry.com
Agency Phone: 617-542-9300
Associate Name: Dave White
IDX logo


Property Description

Shovel-ready development opportunity for eight houses, sitting high on a hill with potential views stretching all the way to Mt. Kearsarge. The project has secured final approval. The only remaining steps are to submit a Certificate of Insurance to the city, post the bond for public improvements and inspections (approximately $6,680), and attend the preconstruction meeting at city hall. The property is fully cleared and easy to view on foot. From the entrance on Hot Hole Pond Road, a shared driveway has been roughed in and proceeds straight for about 150 yards to the proposed sites of the first three houses. From there, the driveway continues for another 150 yards, passing under electric lines to reach a wide clearing and the proposed sites of the next five houses and a cul-de-sac. The boundary lines extend down to Shaker Road below, ensuring the views can always be maintained in the future. Each proposed building envelope has been perc tested, and a utility design layout featuring underground electric lines is complete. Future HOA documents are also complete and recorded, encompassing road maintenance, mowing, and leaf removal for common spaces, with an expected association fee of $110 per month per house.

15 Hot Hole Pond Road | MLS# 5079814

This land located at 15 Hot Hole Pond Road, Concord, NH 03301 is currently listed for sale with an asking price of $819,999. The property has approximately 14.20 Acres. Search Concord real estate on www.masiellogrouprealestate.com today.

Property Features

Property Type: Land - Lot/Land
Lot Size: 14.20 Acres
Taxes: $15

Feature Descriptions

Days on Site: 31
Electric: At Street
Flood Zone: Unknown
Lot: View
Road Frontage: 1
Roads: Public
Sewer: On-Site Septic Needed
Surveyed: Yes
Water: On-Site Well Needed
Zoning: RO

Listed By / Shown By

Listed By

Agency Name: OwnerEntry.com
Agency Phone: 617-542-9300
Agent Name: Dave White

IDX logo

TOUR PROPERTY

Choose a date and time to see 15 Hot Hole Pond Road, Concord, NH 03301.
An agent will get in touch to confirm your request shortly.

Request a Showing
Choose your video chat app
  • Sunday April 19
  • Monday April 20
  • Tuesday April 21
  • Wednesday April 22
  • Thursday April 23
  • Friday April 24
  • Saturday April 25
  • Sunday April 26
  • Monday April 27
  • Tuesday April 28
  • Wednesday April 29
  • Thursday April 30
  • Friday May 1
  • Saturday May 2
  • Sunday May 3
  • 7:00 AM
  • 7:30 AM
  • 8:00 AM
  • 8:30 AM
  • 9:00 AM
  • 9:30 AM
  • 10:00 AM
  • 10:30 AM
  • 11:00 AM
  • 11:30 AM
  • 12:00 PM
  • 12:30 PM
  • 1:00 PM
  • 1:30 PM
  • 2:00 PM
  • 2:30 PM
  • 3:00 PM
  • 3:30 PM
  • 4:00 PM
  • 4:30 PM
  • 5:00 PM
  • 5:30 PM
  • 6:00 PM
  • 6:30 PM
  • 7:00 PM
  • 7:30 PM
  • 8:00 PM
  • 8:30 PM
  • 9:00 PM
Preferred Communication Method

Estimate Your Payment

Estimated Payment

$ 2,065.38 per month $1,824.96 Principal & Interest $1.25 Property Tax $239.17 Homeowner's Insurance

Change Payment Information

%
years/fixed
yearly
yearly (est.)
(Payments are an estimate and may vary by lender)

Login to My Homefinder

Pixel